Helloshabby.com -- The attractive appearance of this simple 68 sqm house will leave anyone stunned. Built over a period of 2 years, the result does not disappoint. Let's take a look at this one-story minimalist house for reference. Check it out!
Interesting facade of the house. Still in the plaster stage, this exterior already displays a modern Bahay house. Moreover, the multi roof helps the house look voluminous and spacious.
Although still semi-finished, the interior of the house already gives a cozy and livable impression. The interior walls are still plastered. But the roof of the house has been designed nicely and makes the design look charming.
This is the result of the 68 sqm house construction process. Starting from standing the house, to almost finished. The use of concrete materials also strengthens the building and residents will feel comfortable.
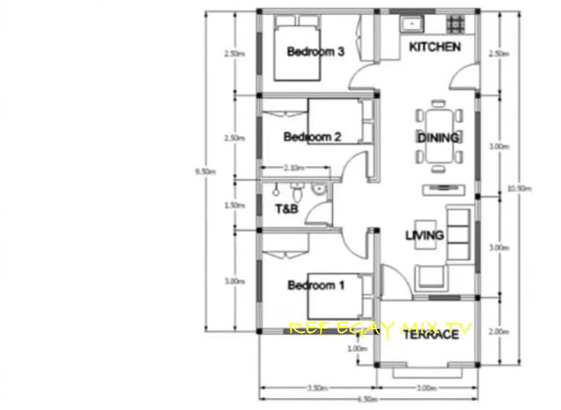
For the details of the floor plan, it is listed in the picture. Moreover, the house plan drawing comes with measurements. This 68 sqm house features a terrace, living room. dining room, kitchen, 3 bedrooms, and 1 bathroom.








