Helloshabby.com -- This small house design can be an inspiration for those of you who are planning to build a house on a small land. This small house design has a simple appearance and is also suitable for small families. The concept of a house that uses concrete material looks natural and can also give a unique impression. Despite its small size, this house is equipped with complete facilities so you can maximise its function.
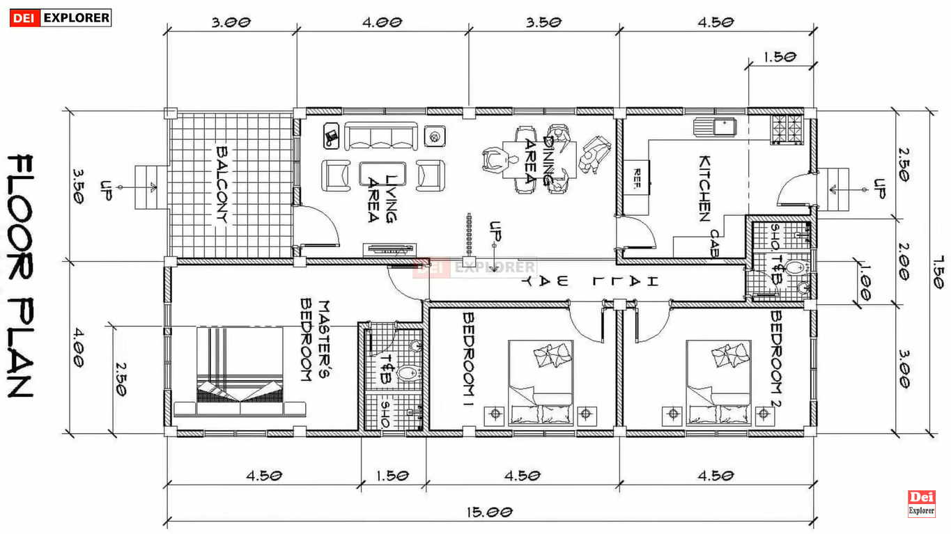
This small house consists of :
- Porch
- Living Room
- Dining Room & Kitchen
- 2 Bathroom
- 3 Bedroom
Thank you for taking time to read Simpleng Pangarap Bahay Design Ideas With Floor Plan. Hopefully, those pictures will be useful to those of you looking for ideas and inspiration for small house design and plan. We hope that this makes it easier for you to build your dream home. Don't forget to share this article with anyone who might find it useful.
Author : Dwi
Editor : Munawaroh
Source : various sources
Helloshabby.com is a collection of minimalist home designs and floor plans from simple to modern minimalist homes. In addition, there are several tips and tricks on home decorating various themes. Our flagship theme is the design and layout of the house, the inspiration of the living room, bedroom, family room, bathroom, prayer room in the house, the terrace of the house and the child's bedroom.




