7 Model denah rumah minimalis 3 kamar tidur type 36


Helloshabby.com -- Rumah type 36 jadi pilihan tepat untuk kita yang ingin memiliki hunian, meski dalam luas lahan dan biaya yang tidak terlalu besar. Biasanya, rumah tipe 36 hanya memiliki dua kamar tidur saja, tapi kita bisa memodifikasinya dengan membuatnya memiliki 3 buah kamar tidur. Dengan begitu, setiap anggota keluarga memiliki kamar tidurnya masing-masing, tanpa harus berbagai kamar. 

Bila Anda ingin membangun rumah minimalis 36 dengan 3 buah kamar tidur, tentu Anda membutuhkan denah rumah yang tepat untuk itu. Sebagai inspirasi untuk hunian 3 kamar tidur, Anda bisa menyimak ulasan dari 7 Model denah rumah minimalis 3 kamar tidur type 36, di bawah ini!


Denah Rumah Minimalis dengan Kolam Renang

cr:instagram/noman_desainrumah

Rumah minimalis yang satu ini dapat dibangun dalam dimensi 8 x 15 M. Ukurannya cukup pas untuk menghadirkan 3 buah kamar tidur. Posisi kamar tidur dibuat berjajar, tapi terdapat space antar tiap kamar, sehingga tetap menjaga privasi masing-masing pemilik kamar.

Model pintu masuk melalui samping, yang cukup berbeda dengan rumah pada umumnya. Hunian ini juga dilengkapi dengan kolam renang minimalis yang bisa jadi ruang rekreasi keluarga. 


Denah Rumah 36 dengan Konsep Open-Plan

cr:instagram/desainrumah36

Pada denah rumah type 36, baiknya beberapa ruang memang dikonsep dengan konsep open plan. Konsep ini menyatukan berapa ruang dalam satu area, tanpa dinding solid. Ruang tamu dan ruang makan bisa dijadikan satu dalam satu area. Sehingga, area berukuran 2.85 x 5.15 meter ini tetap terasa lapang, meski dijadikan untuk dua ruang sekaligus. Dapur juga baiknya dibuat terbuka, tanpa pintu agar terkesan tidak sumpek. 


Denah Rumah 36 dengan Ruang Bersama yang Asik

cr:instagram/desainrumah36

Bila Anda memiliki luas bangunan berukuran 9 x 12 M, Anda bisa membuat lebih banyak ruang meski dalam ukuran yang tidak begitu besar. Anda bisa membuat ruang keluarga yang terpisah dari ruang tamu. Seperti di atas. Model ruang tamu lebih formal dengan adanya dinding pemisah antara ruang tamu dan ruang-ruang bersama. 

Ruang-ruang bersama, seperti ruang makan, dapur dan ruang TV dijadikan satu space. Denah seperti ini akan menghadirkan kenyamanan dan privasi yang lebih baik. Anggota pun lebih bebas beraktivitas, tanpa merasa sungkan terlihat oleh tamu. 


Denah Rumah 9 x 9 M dengan 3 Kamar Tidur

cr:instagram/desainrumah36

Lahan berukuran 9x9 M bisa dijadikan sebuah rumah minimalis dengan 3 kamar tidur. Dari depan, terdapat carport 3 x 4.65 M yang cukup untuk sebuah mobil compact, area teras dan taman hijau yang bisa jadi tempat untuk bersantai di luar rumah. 

Masuk ke dalam rumah, area ruang tamu merangkap sebagai ruang keluarga dalam dimensi 3 x 3.5 M. Kamar tidur utama memiliki ukuran 3 x 3.5 M, sedang kamar tidur 1 berukuran 3.15 x 2.65 M dan kamar tidur terakhir 2.85 x 2.2 M. 3 kamar tidur ini memang tidak super besar, tapi bila ditata apik, kamar akan tetap terasa nyaman. 


Denah Rumah Tipe 36 dengan Partisi

cr:instagram/desainrumah36

Ruang tamu memang dijadikan tempat untuk menerima tamu. Bila ingin memiliki ruang keluarga yang lebih privat, Anda bisa mendesain ruang keluarga yang tampak terpisah dari ruang tamu. Di antara kedua ruang tersebut, diletakkan partisi kayu yang cukup tebal, sebagai pembatas ke dua ruangan. Setiap ruang juga dilengkapi jendela sebagai akses cahaya dan udara yang lebih segar ke dalam rumah


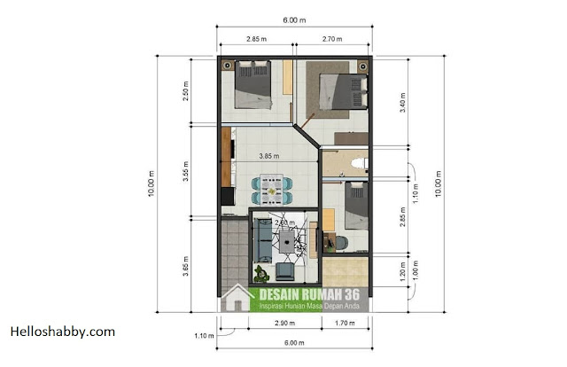
Denah Rumah 6 x 10 M dengan 3 Kamar Tidur

cr:instagram/desainrumah36

Berbeda dari denah rumah lainnya, model dapur pada rumah ini dijadikan center rumah. Dapur dan ruang makan dikelilingi oleh kamar tidur dan ruang tamu. Model seperti ini menjadikan area dapur juga menjadi tempat berkumpul keluarga. Dapur dibuat dalam model sebaris atau single wall. Terdapat pintu di pojok dapur, selain sebahi akses lalu lalang, bukaan ini juga berfungsi untuk memberikan sirkulasi udara yang lebih baik ke dalam ruangan. Bila tak dilengkapi jendela, Anda bisa memasang skylight tepat di atas area dapur. 


Denah Rumah 8 x 12 M dengan Fasilitas Lengkap

cr:instagram/desainrumah36

Dengan ukuran 8 x 12 M, Anda sudah memiliki fasilitas rumah yang terbilang lengkap. Dimulai dari carport, teras, taman hijau sampai ruang cuci jemur di belakang rumah. Dua kamar tidur memiliki ukuran yang sama, yaitu 2.35 x 3 M, ukuran yang pas untuk kamar tidur anak. Sedang kamar tidur utama lebih lebar dengan ukuran 2.35 x 4.05 M. Kamar utama menghadap ruang terbuka, untuk meminimalisir kesan sumpek di dalamnya. 




Terimakasih telah menyimak artikel 7 Model denah rumah minimalis 3 kamar tidur type 36 sampai akhir. Kami selalu mendoakan semoga Anda diberikan kemudahan dalam membangun rumah impian. Jangan lupa, bagikan artikel ini kepada teman, saudara, suami/istri atau keluarga yang membutuhkan. Semoga bermanfaat. 

Penulis  : Yeni
Editor    : Munawaroh
Sumber : Berbagai Sumber

Categories in English