Helloshabby.com -- Rumah adalah kebutuhan primer. Untuk itu, baik dalam jangka waktu yang lama, setiap keluarga tentu ingin mewujudkan rumah idamannya. Rumah idaman bisa berbeda-beda pada setiap orang. Ada yang menginginkan konsep rumah sederhana dengan fitur eksterior yang menenangkan. Salah satunya, desain rumah modern yang dilengkapi dengan kolam ikan gazebo yang menyenangkan. Desain rumah ini merupakan karya dari @dualapan_desainrumah yang menawarkan desain dan tata letak interior yang apik. Lebih lengkapnya, simak ulasan Desain Rumah 56m2 dengan Kolam Ikan Gazebo yang Super Segar.
Desain Tampilan Depan Rumah
![]() |
| instagram/dualapan_desainrumah |
Secara sekilas, desain fasad rumah tak jauh berbeda dengan konsep rumah minimalis modern biasanya. Detail ornamen ditambahkan untuk memberi kesan unik dan segar pada tampilan depan rumah. Misalnya, pemasangan pilar depan dengan permainan bata roster. Bata roster ini memiliki ukuran yang cukup lebar, sehingga memberi sedikit privasi di area teras.
Desain Rumah Tampak Samping
Rumah ini 'sedikit' memiliki bentuk L dengan pintu utama yang menghadap samping, alih-alih ke depan. Tampilan teras rumah pun dibuat menyesuaikan arah pintu rumah. Dengan keramik hitam yang memiliki elevasi sekitar 10-20 cm dari permukaan tanah. Nilai estetika juga ditambahkan dengan memasang lampu outdoor dengan sorot yang unik dan memberi kesan eksotis di depan rumah.
Desain Rumah Terbuka
![]() |
| instagram/dualapan_desainrumah |
Desain rumah dibuat lebih terbuka tanpa adanya pagar depan rumah. Rumah tanpa pagar terkesan lebih luas dan lapang. Bagian carport ternaungi oleh kanopi dengan atap galvalum atau atap kaca tempered. Lantai carport menggunakan material yang kasar dengan warna keabuan yang senada dengan tampilan bangunan rumah.
Desain Atap Rumah 56m2
Rumah ini menggunakan model atap limasan dengan 4 bidang miring yang bertemu pada satu garis lurus. Kemiringan atap bisa dibuat sekitar 30-40 derajat. Kemiringan yang pas akan memudahkan pemasangan dan memaksimalkan fungsi dari atap limasan. Pemasangan atap terlalu curam bisa membuat genteng jatuh ke bawah. Sebaliknya, kemiringan ideal akan membelokkan arah angin dan hujan, sehingga tidak mudah mengurangi risiko kebocoran.
Fitur Eksterior Rumah
![]() |
| instagram/dualapan_desainrumah |
Luas bangunan ini mencapai 56m2 saja. Namun, untuk membuat rumah yang memiliki fitur eksterior seperti di atas, akan lebih baik memiliki luas lahan 10 x 20 M atau 200m2. Dengan begitu, Anda bisa membangun sebuah fitur outdoor yang menyenangkan. Salah satunya, fitur lanskap yang memiliki kolam ikan dengan gazebo bersantai di atasnya. Akses menuju taman dan kolam ikan dari rumah terhubungkan oleh jalan setapak yang minimalis.
Tata Letak Rumah
Rumah ini memiliki tiga bagian utama, yaitu bagian depan rumah, inti dan belakang rumah. Bagian depan terdiri atas carport dan teras. Bagian inti berupa ruang-ruang yang digunakan oleh penghuni rumah, seperti ruang tamu, ruang keluarga, kamar tidur dan sebagainya. Desain ruang tamu terpisah dari ruangan lainnya. Ini untuk memberi privasi pada tamu dan kenyamanan saat penghuni ingin berada di ruang keluarga. Bagian belakang rumah berupa sebuah taman yang dilengkapi kolam ikan dan gazebo yang siap menjadi tempat bersantai keluarga.
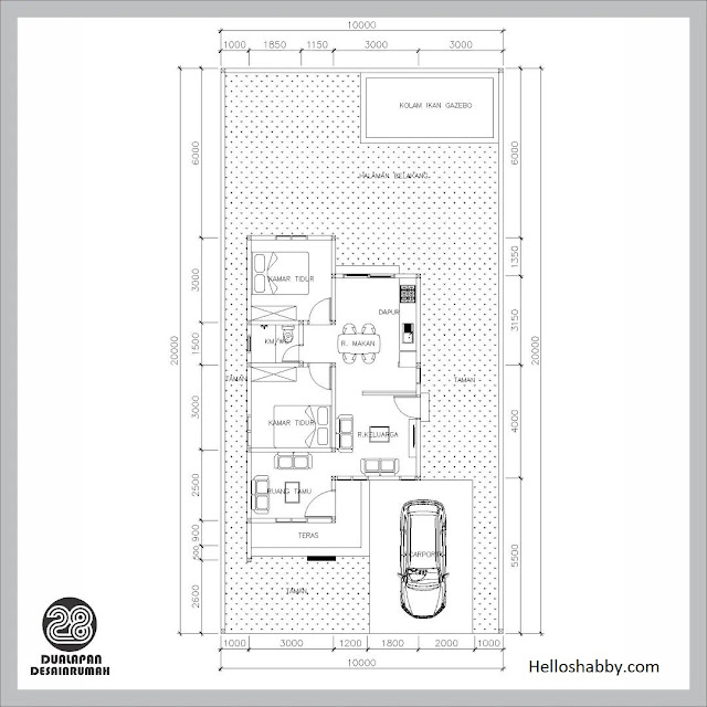
Denah Rumah dengan Kolam Ikan Gazebo
![]() |
| instagram/dualapan_desainrumah |
Desain rumah ini memiliki luas bangunan 56 m2 dengan luas lahan 200 m2. Rumah ini terdiri dari carport berukuran 3.8 x 5.5 M, teras berukuran 4.2 x 1.4 M, taman berukuran 5.2 x 2.6 M, ruang tamu berukuran 3 x 2.5 M, ruang keluarga berukuran 3 x 4 M, kamar tidur 1 berukuran 3 x 3 M, kamar tidur 2 berukuran 3 x 3 M, ruang makan dan dapur berukuran 3 x 3.15 M, dan kamar mandi/WC berukuran 1.85 x 1.5 M.
Terimakasih telah menyimak artikel Desain Rumah 56m2 dengan Kolam Ikan Gazebo yang Super Segar sampai akhir. Kami selalu mendoakan semoga Anda diberikan kemudahan dalam membangun rumah impian. Jangan lupa, bagikan artikel ini kepada teman, saudara, suami/istri atau keluarga yang membutuhkan. Semoga bermanfaat.
Penulis : Yeni
Editor : Munawaroh
Sumber : instagram/dualapan_desainrumah
Bagi anda yang membutuhkan jasa desain rumah minimalis silahkan hubungi whatsapp 08568160677 atau klik www.hsdesain.com.








