Helloshabby.com -- Dalam membangun sebuah rumah, tentu desain interior dan eksterior perlu dipertimbangkan dengan matang. Tak masalah menghadirkan sedikit ruang tapi menyajikan kenyamanan maksimal. Seperti pada desain rumah modern karya dari arsitek rumah @noman_desainrumah. Rumah ini dibangun dengan luas bangunan 8 x 13 M. Meski terbilang luas, pemilik tak ingin ada lebih banyak ruang, supaya rumah terasa lebih luang dan lapang. Sebagai gantinya, desain interior kamar tidur dibuat lega dan dilengkapi kamar tidur dalam.
Rumah ini juga terlihat modern dengan elemen eksterior yang tak kalah menarik. Lebih lengkapnya, Anda bisa menyimak ulasan Desain Rumah Modern Ukuran 8 x 13 M dengan 2 Kamar Tidur + Kamar Mandi Dalam yang Praktis!
Desain Fasad/ Tampak Depan
Ciri khas rumah noman_desainrumah adalah aplikasi warna monokrom pada setiap finishing eksterior rumah. Tentu, model ini hanya sebuah patokan. Anda boleh memilih finishing warna sesuai dengan selera Anda.
Rumah ini dilengkapi dengan pilar teras dari batu alam untuk membuat tampila rumah jadi lebih adem. Di pilar turut dipasang lampu taman minimalis untuk menerangi area carport. Di rumah ini juga terdapat model jendela ramping yang dipasang tepat di kanan dan kiri pintu utama.
Skema Fasad Rumah dengan Pagar
Opsi meniadakan pagar seperti pada gambar pertama bisa dipilih untuk membuat rumah lebih lega. Tapi bila ingin rumah lebih privat dan aman, Anda pun bisa menambahkan sebuah pagar rumah. Pagar yang dipilih berupa pagar besi hollow dan kombinasi tembok bata alam. Warna putih dan hitam dipilih sebagai finishing pagar agar tampak harmonis dengan tampilan eksterior bangunan rumah.
Desain Rumah Tampak Atas
Bagian atap menggunakan model atap limasan dengan genteng beton flat yang terdiri dari 4 bidang miring berbentuk segitiga dan trapesium, yang memiliki kemiringan yang serupa sehingga menampilkan rumah yang lebih presisi dan artistik. Atap limasan dapat dibuat dengan sudut kemiringan 30 hingga 40 derajat supata memberikan perlindungan maksimal terhadap dinding bagian luar dari panasnya matahari dan tempias hujan.
Tata Layout Interior Rumah
Setiap ruangan memiliki bentuk kotak atau persegi. Bentuk ini tentu akan memudahkan saat Anda mengatur posisi furnitur ruangan. Satu ruangan didesain dalam bentuk open plan tanpa sekat dinding solid. Sebagai gantinya, antara ruang tamu dan ruang keluarga menggunakan sekat partisi kayu yang lebih ramping dan praktis.
Ruang keluarga dan dapur dijadikan menyatu tanpa adanya penghalang. Layout-nya dibuat sederhana. Misalnya, pada dapur dibuat dengan model single wall atau linear sebaris yang lebih praktis dan hemat tempat.
Interior Ruangan yang Lapang dan Nyaman
Setiap interior ditata dengan penataan yang simpel dan tidak banyak elemen dekoratif yang ramai. Misalnya, pada desain kamar tidur. Anda bisa mengaplikasikan tema Skandinavian yang cenderung minimalis dan praktis. Tema ini membuat kamar jadi tampak lebih bersih dan lapang. Anda pun bisa mendesain kamar mandi di dalam setiap kamar tidur untuk membuat agenda bebersih diri jadi lebih praktis. Tak perlu khawatir, masih terdapat kamar mandi bersama yang bisa dipakai saat keluarga berkunjung ke rumah.
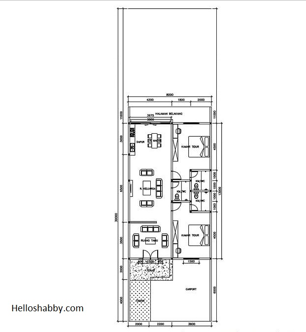
Denah Rumah Modern Ukuran 8 x 13 M
Rumah ini memiliki: carport berukuran 5.8 x 6 M, teras berukuran 4.2 x 2 M, taman hijau 2 x 4 M, ruang tamu berukuran 4.2 x 3 M, kamar tidur 1 berukuran 3.8 x 4.5 M dengan kamar mandi dalam berukuran 2 x 2 M, kamar tidur 2 berukuran 3.8 x 4.5 M dengan kamar mandi dalam berukuran 2 x 2 M, ruang keluarga berukuran 3 x 6.5 M, dapur berukuran 3 x 3 M dan halaman belakang 8 x 1.1 M.
Terimakasih telah menyimak artikel Desain Rumah Modern Ukuran 8 x 13 M dengan 2 Kamar Tidur + Kamar Mandi Dalam yang Praktis! sampai akhir. Kami selalu mendoakan semoga Anda diberikan kemudahan dalam membangun rumah impian. Jangan lupa, bagikan artikel ini kepada teman, saudara, suami/istri atau keluarga yang membutuhkan. Semoga bermanfaat.
Baca juga :
Solusi Terbaru Bangun Rumah dengan Desain-desain Terbaru yang Lebih Modern

Helloshabby.com -- Berencana untuk membangun sebuah rumah impian keluarga? Tentu dalam membangun hunian tinggal, desain dan denah rumah adalah hal yang wajib dipertimbangkan dengan matang. Desain dan denah rumah yang tidak pas akan membuat rumah tidak tahan lama dan kurang nyaman untuk ditinggali....
Desain Rumah Klasik 2 Lantai Ukuran 6 x 12 M dengan 3 Kamar Tidur, Tampil Elegan dan Tetap Nyaman!

Helloshabby.com -- Berminat membangun rumah dua lantai? Barangkali ulasan desain rumah kali ini bisa dijadikan referensi dalam memilih desain hunian dua lantai yang nyaman. Rumah ini dibangun dalam ukuran 6 x 12 meter. Ukuran yang terbilang cukup untuk menghadirkan tiga kamar tidur untuk pasutri, anak...
Desain Rumah Terbaru Ukuran 7 x 14.5 M dengan 3 Kamar Tidur dan Ruang Cuci Jemur dekat Taman

Helloshabby.com -- Kembali hadir dengan membawa inspirasi desain dan denah rumah terbaru untuk Anda. Kali ini ulasan inspirasi desain diambil dari arsitek Noman_Desainrumah yang menyajikan desain hunian modern nan nyaman. Konsep hunian terbilang minimalis dan praktis sangat cocok untuk Anda yang tinggal...
Penulis : Yeni
Editor : Munawaroh
Sumber : instagram/noman_desainrumah






